Mehrgenerationenhaus: Leben mit Natur und Nachhaltigkeit
- Wohnfläche: 184,6 m²
- Grundfläche: 237 m²
- Terrassenüberdachung: 18,8 m²
- Unter einem Dach: 255,8 m²
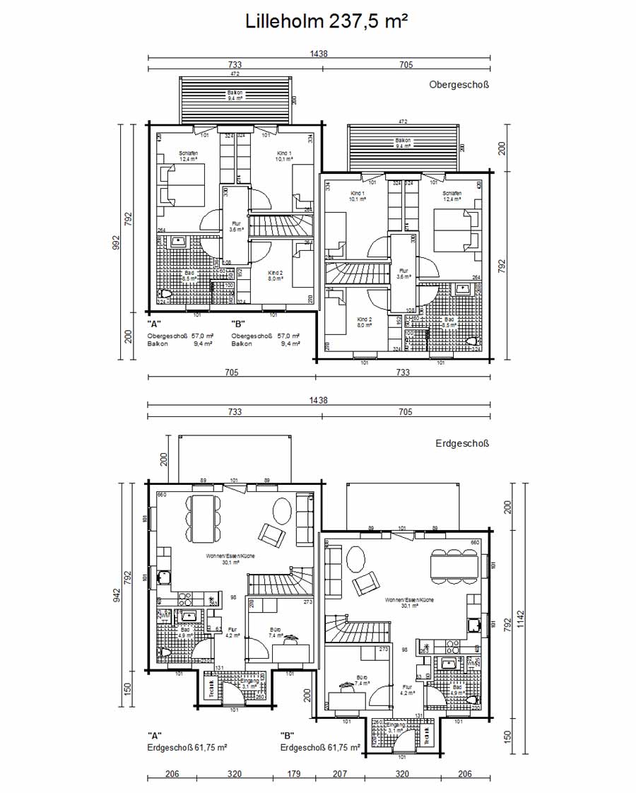
Lilleholm
Das perfekte Haus für größere Familien
mit Kindern oder einfach Familien mit dem Wunsch nach großzügigem Wohnraum.
Was kostet Ihr Christian Panbo Holzhaus?
Material und Energie
Umweltfreundlich und Energieeffizient

Ein Niedrigenergie-Holzhaus, entwickelt in Abstimmung mit Bauherr, Architekten und Energieexperten, bietet höchste Energieeffizienz. Wand- und Deckenaufbau, Fenster- und Türenauswahl und Lüftungskonzepte werden exakt angepasst, um ein nachhaltiges und behagliches Zuhause zu schaffen - selbstverständlich förderprogrammgeeignet.
Lesen Sie hier mehr zum Thema Energie
Weitere Häuser vom Typ: "1,5-geschossiges Haus" und "Doppelhaus" und "Ferienhaus" und "Grönlandhaus" und "Individualisten" und "Junge Familien"



