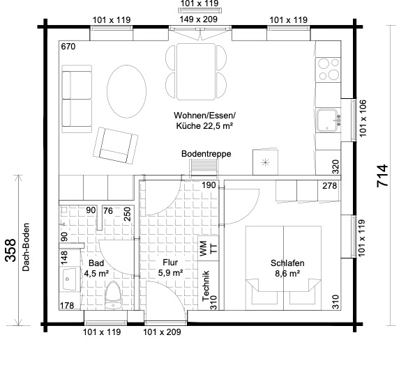
Granlille - ein 1-geschossiges Holzhaus, 51 qm Grundfläche
- Wohnfläche: 40 m²
- Grundfläche: 51 m²
- Hems: 14 m²
- Unter einem Dach: 65 m²
Granlille
kleines Ferienhaus, Gästehaus oder auch als gemütliches Wohnhaus.
Christian Panbos Holzhäuser zeichnen sich durch ihre einzigartige Anpassbarkeit aus, wodurch sie jederzeit nach individuellen Vorstellungen verändert werden können.
Hier im Beispiel als kleines Ferienhaus, Gästehaus oder auch als kleines und gemütliches Wohnhaus.
Was kostet Ihr Christian Panbo Holzhaus?
Material und Energie

Unsere Holzhäuser sind grundsätzlich schon als Niedrigenergiehäuser konzipiert, entwickelt und hergestellt. Nachhaltig und ökologisch, bieten wir behagliches Wohnen durch präzise Details: Wandstärken, Lage auf dem Grundstück, Fenstergrößen, Heizung, Versorgungstechnik und Lüftungskonzept. Gemeinsam mit einem Architekten gestalten wir energieeffiziente Häuser, die bei Bedarf auch die gültigen Anforderungen an Förderprogramme erfüllen
Lesen Sie hier mehr zum Thema Energie
Weitere Häuser vom Typ: "1-geschossiges Haus" und "Ferienhaus" und "Senioren"






