Lebendige Häuser aus Holz: Alle Größen, Formen und Stile
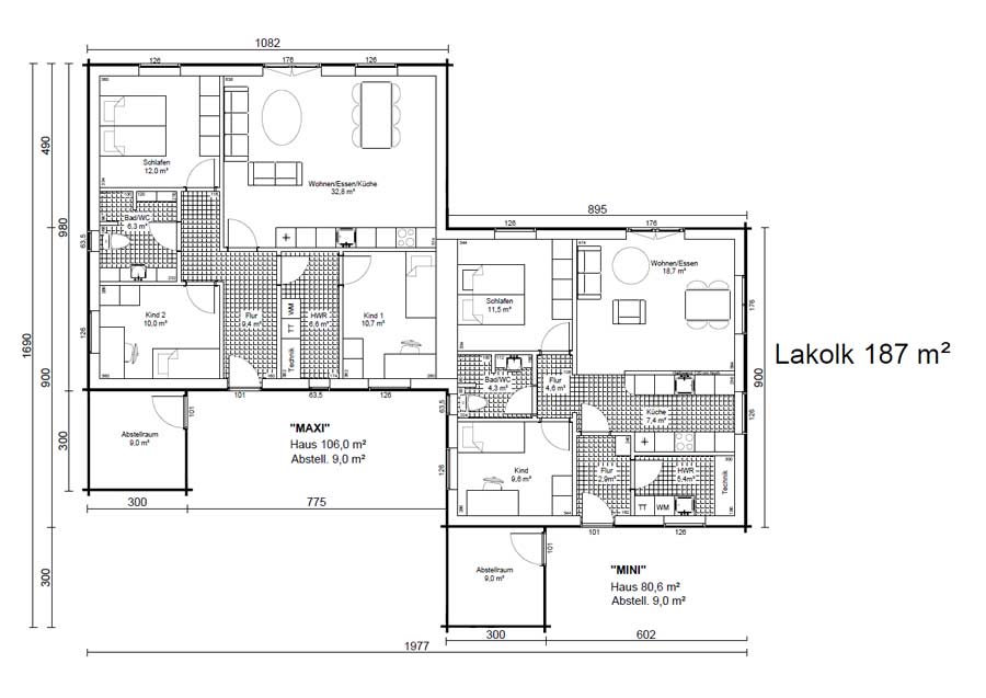
- Wohnfläche: 153 m²
- Grundfläche: 187 m²
- Carport mit integriertem Abstellraum: 18 m²
- Unter einem Dach: 205 m²
Lakolk
Doppelhaus für große Familien
Das ideale Doppelhaus für große Familien, mehrere Generationen oder einfach anspruchsvolle Parteien, die gern zusammen und dennoch getrennt voneinander leben möchten. Frei und flexibel kann es jederzeit den individuellen Bedürfnissen angepasst werden.
Was kostet Ihr Christian Panbo Holzhaus?
Material und Energie
Umweltfreundlich und Energieeffizient

Holzhäuser als Niedrigenergiehäuser: Mit Bauher, Architekt und Energieexperten gestalten wir präzise Wand- und Deckenaufbauten, optimierte Fenster und Türen und bei Bedarf auch Lüftungskonzepte für höchste Energieeffizienz. Behaglich, ökologisch und förderprogrammgeeignet - das sind unsere Holzhäuser!
Lesen Sie hier mehr zum Thema Energie
Weitere Häuser vom Typ: "1-geschossiges Haus" und "Doppelhaus" und "Ferienhaus" und "Grönlandhaus" und "Individualisten" und "Junge Familien"



