Christian Panbo Holzhäuser: Bauen nach Maß und Geldbeutel
- Wohnfläche: 156 m²
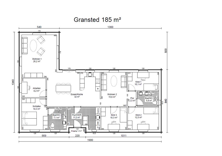
- Grundfläche: 185 m²
- Eingangsüberdachung: 1 m²
- Unter einem Dach: 186 m²
Gransted
Winkelhaus im typisch dänischen Stil
Auch dieses Haus lässt sich ganz nach den persönlichen Vorstellungen anpassen oder verändern.
Das Winkelhaus im typisch dänischen Stil beispielsweise, mit einem großen, einladenden Küchen- und Wohnbereich, großzügigen Zimmern und zwei Bädern bietet Platz für die große Familie.
Was kostet Ihr Christian Panbo Holzhaus?
Material und Energie
Umweltfreundlich und Energieeffizient

Gemeinsam mit unseren Bauherren, Architekten und Energieexperten gestalten wir Niedrigenergieholzhäuser mit höchster Effizienz. Optimale Wandstärken, passgenaue Dämmungen, Fenstergrößen und ein individuelles Lüftungskonzept stehen im Fokus, um den Energiebedarf zu minimieren.
Lesen Sie hier mehr zum Thema Energie
Weitere Häuser vom Typ: "1-geschossiges Haus" und "Ferienhaus" und "Individualisten" und "Junge Familien" und "Senioren"




