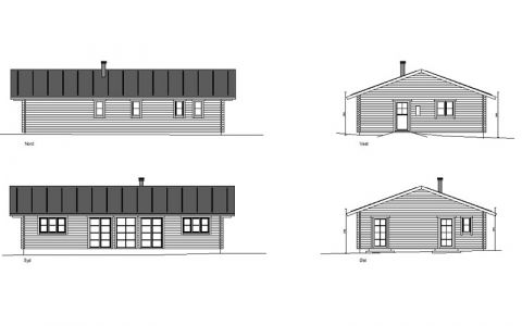
Blockbohlenhaus Tisvilde mit Dachpappe

Blockbohlenhaus Tisvilde mit Dachpappe

Blockbohlenhaus Tisvilde mit Dachpappe

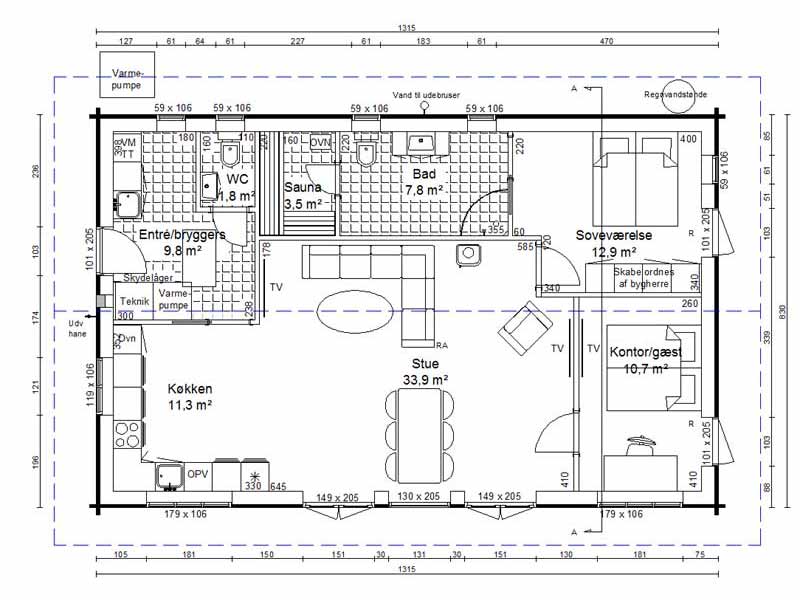
Das Haus wir aufgewärmt mit eine Wärmepumpe; Luft/Wasser, überall ist Bodenheizung und die Kosten für Wärme sind sehr niedrig.

Das Haus ist eine Variante von unserem Kataloghaus Tisvilde.