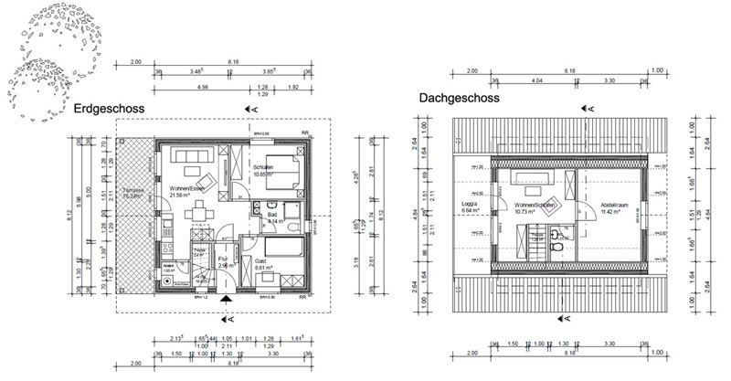
1½-Geschossiges Haus in Canow 2018

1½-Geschossiges Haus in Canow 2018

Uwe Meyer hat in Canow ein 1½-geschossiges Haus mit überdachte Terrasse gebaut.